价格:North Melbourne 一床位出租,極靠近 UniMelb, 歡迎學生在 8月10日後入住
North Melbourne 一床位出租,極靠近 UniMelb, 歡迎學生在 8月10日後入住
房屋出租 $714.00
- 房源编号: #154639
- 周租金:$714.00
- 入住时间: 2013-08-10
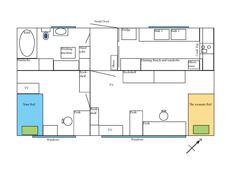
位於 Brougham Street 的一間 apartment,靠近 University of Melbourne,歡迎學生、專業人士入住。環境清幽,晚上非常安靜,利於讀書、休息。 57 號 tram 車站就在路口,進市區非常容易。Queen Victoria Market、 IGA、亞洲超市(Asian Grocery)都在附近,極為方便。
1室 1厅 1浴 1 廚的 apartment. 臥室現住有一名墨大學生,客厅有一床位供出租。厅內設有書桌、衣櫥、書架、電視、暖氣。客厅窗户寬敞,白天光线非常充足。沒有網線,但是相信大家的手機配套都有足夠的 data plan。如要合買 prepaid internet package,可以商量。
廚房設有電爐、微波爐、熱水器,沒有自然氣供應,煮食一律靠電氣。浴室有熱水供應, 並備有洗衣機。
房屋价格:165/周(水費包在裡面),電費share bills. 希望能够找一个爱干净的室友合租。
欢迎联系预约看房!
如有兴趣请联系 0421700914 (Jin)
小提示:联系我时,请说是在Move2Rent.com上看到的,谢谢!

墨尔本退房清洁,洗地毯 联系电话:0452202757 0420234186
[ 房屋出租搜索 ] [ 加入收藏 ] [ 告诉好友 ] [ 打印本文 ]
- 电话:

- 联系人:Mr. Goh


